アパート建築

将来的な収益を考えた物件をご検討のお客様へ
その土地や立地を最大限に活かしたプランをご提案いたします。


Apartment Type アパート建築実例

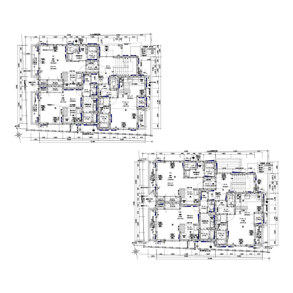
2F建て 広々1K & ワンルームタイプ6戸(坪当り 49 万円)

【標準設備】

  • ・エアコン6カ所
  • ・オートロック
  • ・TV モニターインターフォン
  • ・浴室乾燥機
  • ・システムキッチン2口ガスコンロ
  • ・LED 照明
  • ・LAN 配線

【DATA(面積)】

1F 住宅部分 90.51 ㎡
1F 廊下部分 12.83 ㎡
1F ポーチ部分 3.73 ㎡
1F バルコニー部分 8.83 ㎡
2F 住宅部分 90.51 ㎡
2F 廊下部分 12.83 ㎡
2F バルコニー部分 8.83 ㎡
施工床面積 228.07 ㎡
(68.99 坪)

約10 帖の解放感のあるワンルーム
バス・トイレ別にゆとりのキッチン
内階段内廊下でセキュリティー対策
全室バルコニー付き

建築工事費シミュレーション

【本体工事費】
68.99 坪 × 49 万円 = 33,805,100 円
小計(A)33,805,100 円
【付帯設備工事費等】
建築確認申請代
一式
650,000 円
給排水設備工事
一式
1,268,700 円
ガス設備工事
一式
941,000 円
外構工事
一式
953,400 円
防音工事
一式
566,300 円
水道加入金
5件
412,200 円
小計(B)4,791,900 円

A + B = 38,597,000 円

3,860万円(税込)

2F建て 2LDK ファミリータイプ4戸(坪当り 53 万円)

【標準設備】

  • ・エアコン4カ所
  • ・TV モニターインターフォン
  • ・システムキッチン3口ガスコンロ
  • ・浴室乾燥機
  • ・トイレ1F・2F別
  • ・LED 照明

【DATA(面積)】

1F 住宅部分 31.53 ㎡
2F 住宅部分 31.53 ㎡
1世帯あたり 63.06 ㎡
×4世帯合計 252.26 ㎡
(76.31 坪)

家族で寛ぎのテラスハウスタイプ
1世帯にトイレ2カ所(1・2F)
L型カウンターキッチン仕様
小屋裏収納・駐車場完備

建築工事費シミュレーション

【本体工事費】
76.31 坪×53 万円=40,444,300 円 小屋裏収納4 ヵ所 660,000 円
小計(A)41,104,300 円
【付帯設備工事費等】
建築確認申請代
一式
835,000 円
水道引込工事
一式
660,000 円
メーター廻り工事
一式
440,000 円
ガス設備工事
一式
510,000 円
外構工事
一式
1,760,000 円
水道加入金
3件
274,500 円
小計(B)4,452,500 円

A + B = 45,556,800 円

4,556万円(税込)

2F 建て中二階ロフト付ワンルームタイプ8戸(坪当り70.3 万円)

【標準設備】

  • ・エアコン8カ所
  • ・TV モニターインターフォン
  • ・ミニキッチン(IHコンロ・冷蔵庫)
  • ・シャワーブース仕様
  • ・LED 照明
  • ・室内物干し

【DATA(面積)】

1F 住宅部分 49.97 ㎡
1F ロフト部分 24.52 ㎡
2F 住宅部分 49.97 ㎡
施工床面積 124.46 ㎡
(7.65 坪)
※正味住宅部分は99.94 ㎡

狭小地を生かした全室ロフト付
天井高 約3.7 メートルの解放感
無駄のない省スペース設備採用
100 ㎡未満の建坪で建築可能

建築工事費シミュレーション

【本体工事費】
37.65 坪 × 70.3 万円 = 26,467,950 円 2F ロフト4 ヵ所 660,000 円
小計(A)27,127,900 円
【付帯設備工事費等】
建築確認申請代
一式
660,000 円
給排水設備工事
一式
1,834,000 円
ガス設備工事
一式
920,000 円
外構工事
一式
1,020,000 円
水道加入金
7件
577,500 円
小計(B)5,011,500 円

A + B = 32,139,450 円

3,214万円(税込)